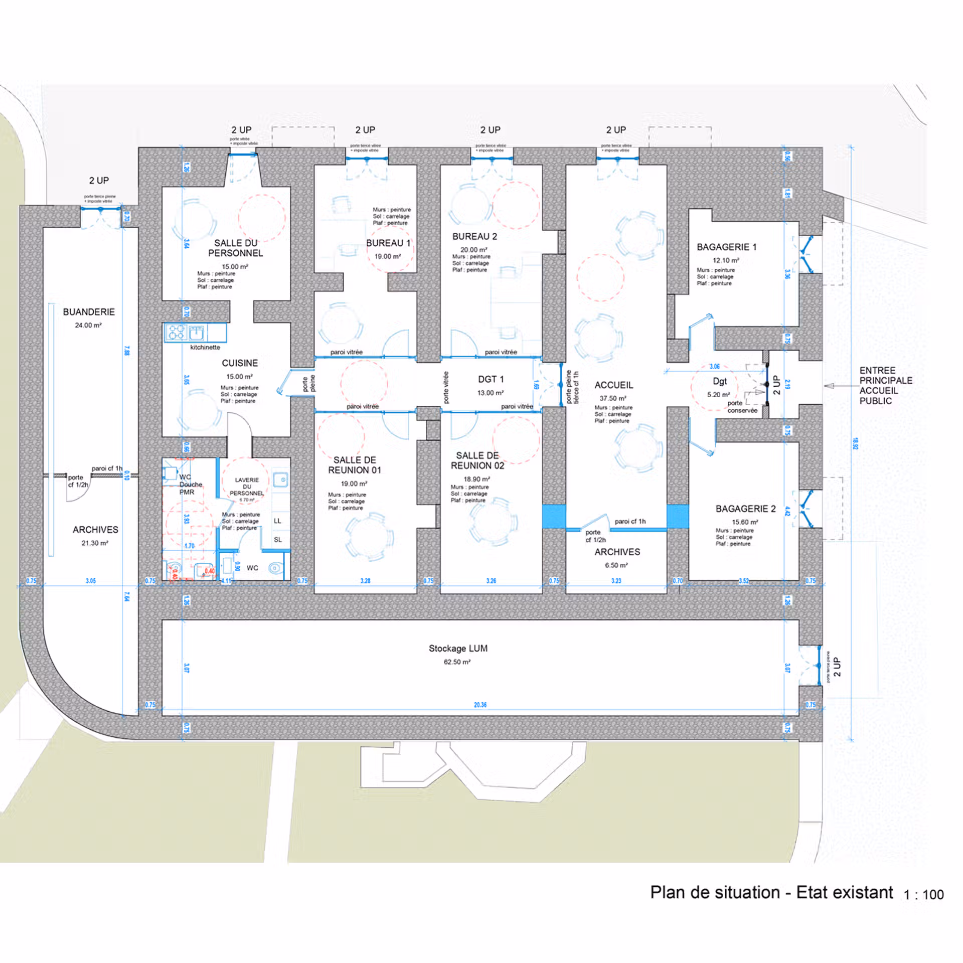
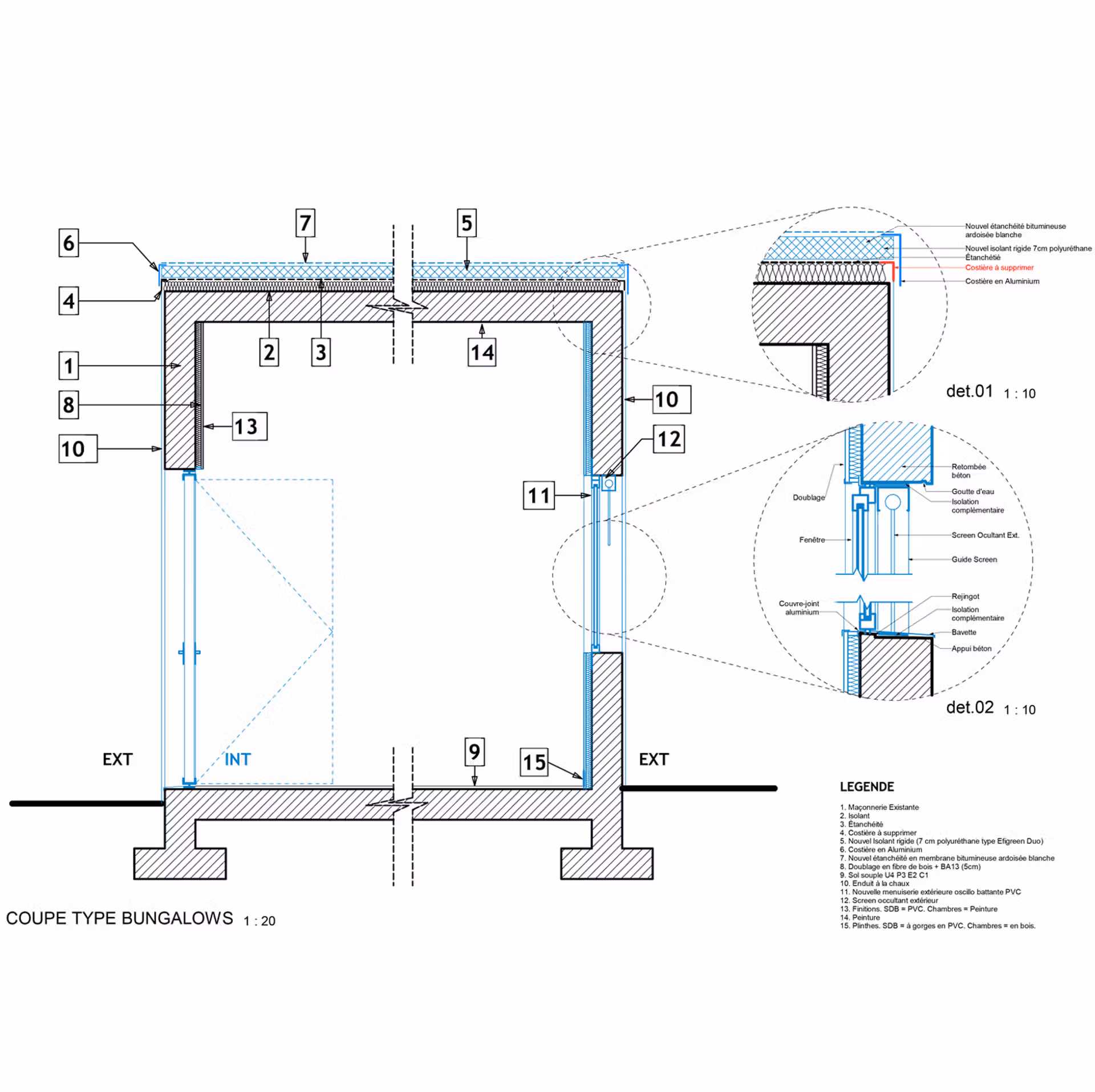
La réhabilitation du site de plongée n’intervient pas sur les volumes qui restent inchangés. Le curage des enduits précédemment apposés permettra de retrouver leur aspect d’origine. La réfection complète des enduits extérieurs vieillissants des bungalows, sera réalisé à base d’enduit naturel au chanvre. Ce projet répondra aux exigences thermiques afin d’assurer le confort des usagers. Des reprises structurelles sur le fort seront réalisées pour éviter sa dégradation prématurée. Certains éléments bâtis seront démolis car ils dénaturent les murs d’enceinte du fort, ainsi que sur le fort lui-même. La végétalisation de l’ensemble du site permettra la pérennisation et la stabilisation de la topologie du site, tout en offrant un meilleur accueil au public. Cela sera réalisé suite à une désimperméabilisation des sols existants bitumés.
Architecte mandataire :
Atelier MAD




