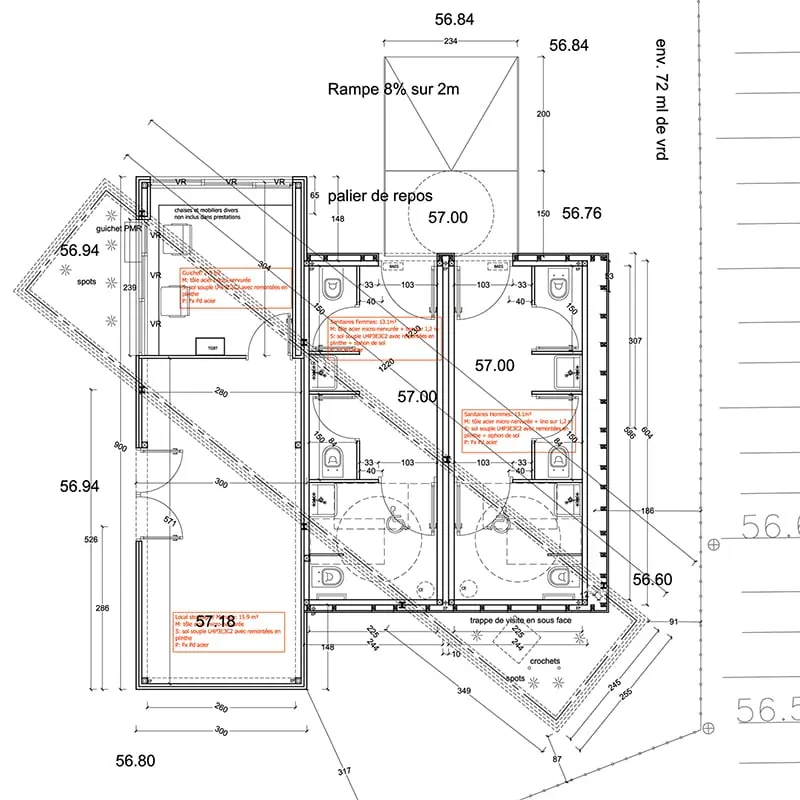
Depuis 2004, la ville d’Antony met à la disposition de façon permanente du Théâtre Firmin Gémier, un terrain stabilisé et viabilisé pour l’installation de chapiteaux dans le quartier Pajeaud, rue Georges Suant. Il s’agit d’un espace sécurisé de 4400 m² permettant d’accueillir le chapiteau et les caravanes d’une équipe en résidence. Pour ses 10 ans d’existence (en novembre 2014), l’espace chapiteaux d’Antony souhaite faire construire un bâtiment d’accueil du public, composé de la billetterie, d’une galerie d’exposition et de sanitaires accessibles au public.
Le projet concerne également la création d’un pôle artistique, en fond de parcelle, composé d’une salle de réunion, de sanitaires/loges et d’une buanderie accessible principalement par les artistes en résidence. Elaboré en structure modulable, les constructions sont réalisées avec des containers, en écho aux prouesses techniques réalisées par les artistes de cirque, en perpétuelle recherche d’innovation et qui déjouent bien souvent les lois de la gravité.
Architecte mandataire :
Atelier MAD









