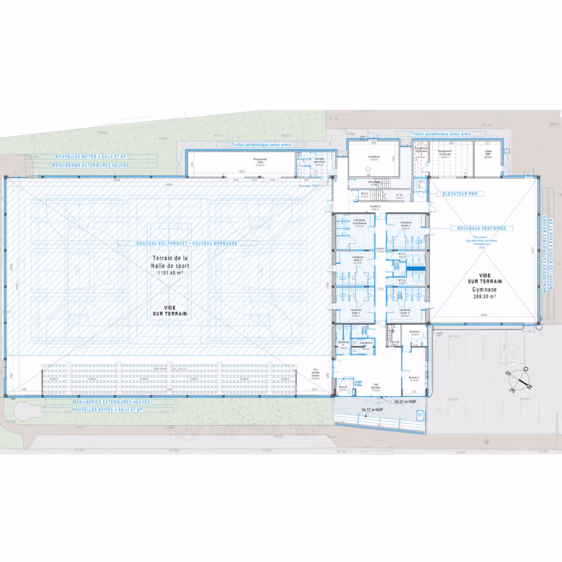
Le projet de rénovation du COSEC de Saint Maurice est situé au sein d’un environnement paysager exceptionnel, à proximité de la Marne et de ses canaux. Il s’agit d’un Établissement Recevant du Public (ERP) de troisième catégorie, pouvant accueillir jusqu’à 700 personnes. La rénovation englobe la plupart des espaces existants, notamment l’accueil, les vestiaires, les deux salles de gymnase, ainsi que les salles dédiées à la danse et aux arts martiaux à l’étage.
Les travaux sont variés, comprenant le désamiantage et le déplombage, l’amélioration de l’isolation thermique de l’enveloppe du bâtiment, la correction des problèmes structurels en révisant les fondations, l’accessibilité aux personnes à mobilité réduite grâce à une extension équipée d’un élévateur PMR, le traitement acoustique de la grande halle, la mise aux normes de sécurité incendie, la rénovation des réseaux d’eau potable et de ventilation, ainsi que la création d’espaces intérieurs accueillants et fonctionnels grâce à des travaux de peinture, de mobilier, de sols et d’équipements sanitaires.




