Le centre technique municipal, situé entre l’Avenue du général de Gaulle et l’autoroute A6, est actuellement en cours de restructuration, avec un réaménagement extérieur couvrant une superficie totale de 9 234 m².
Ce site se caractérise par des circulations peu fluides entre les bâtiments, une pollution sonore due à l’autoroute, et une organisation désordonnée résultant de constructions ajoutées au fil du temps. Le projet vise à agrandir les bureaux administratifs et à rationaliser le stationnement des véhicules municipaux.
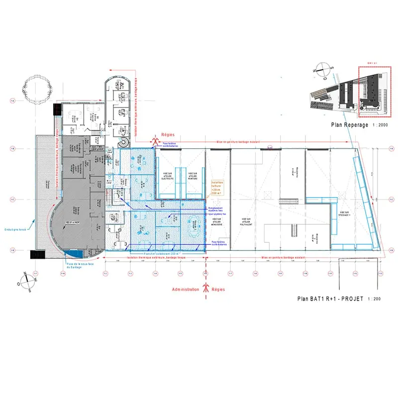
L’objectif de l’Atelier MAD est d’apporter une réelle amélioration au centre technique municipal en optimisant la circulation et en proposant une organisation cohérente sur l’ensemble du site. La zone des bureaux du bâtiment 1 sera isolée par l’extérieur grâce à un nouveau bardage isolant, avec une mise en œuvre en plusieurs phases tout en maintenant le site en activité.
Le site est visible depuis la A6.











