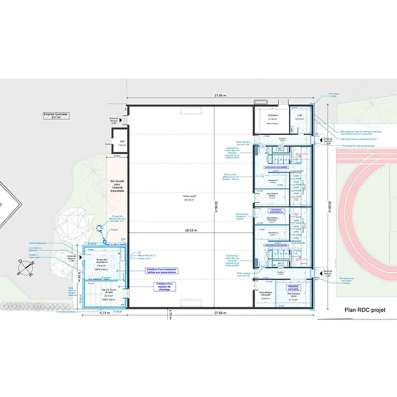
Ce projet vise à rénover un gymnase existant tout eny ajoutant une extension dédiée aux associations sportives à l’arrière du bâtiment.
L’extension dédiée aux associations sportives permettra de libérer le deuxième vestiaire existant, ce qui permettra de créer des vestiaires séparés pour accueillir des groupes mixtes et des équipes lors de rencontres sportives.
La rénovation des locaux inclura également la mise en place de sanitaires adaptés pour accueillir les personnes à mobilité réduite.
De plus, le réaménagement extérieur sera repensé pour faciliter un accès différencié entre l’association sportive, l’école et le centre de loisirs, améliorant ainsi la fonctionnalité globale des installations sportives.






